Según ha anunciado el Ayuntamiento de Haro, el vivero de empresas de Haro está previsto que pueda abrir sus puertas durante el próximo verano una vez concluyan las obras de acondicionamiento del local y se proceda después al equipamiento de las dependencias.
La alcaldesa, Laura Rivado, y el concejal de Obras, Javier Redondo, han visitado las obras del nuevo centro de formación, desarrollo de empleo y vivero de empresas situado en el número 19 de la calle Federico García Lorca en unos locales de titularidad municipal.
Los trabajos, que comenzaron en diciembre, cuentan con un presupuesto total de 237.600 euros y serán financiados por las arcas municipales a la espera de la resolución de la solicitud de subvención de fondos europeos presentada a través de la Asociación para el Desarrollo de La Rioja Alta, ADRA.
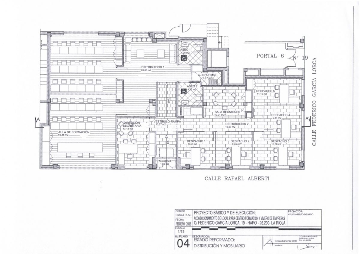
El centro tiene una superficie de 220 metros cuadrados y las instalaciones contarán con cinco despachos individuales de unos 10 metros cuadrados, despacho de dirección-secretaría, zonas comunes, dos baños, aula de formación con 15 equipos informáticos y sala de reuniones.
El futuro vivero está concebido como ‘un espacio de acogida temporal en el que pueden ubicarse las empresas en sus primeros años de actividad y donde pueden acceder a formación, asesoramiento y servicios adaptados a las necesidades de desarrollo de sus iniciativas’, como ha explicado Rivado.
Servicios que ofrecerá
Gracias a los convenios firmados con Gobierno de La Rioja, ADER, FER y Cámara de Comercio, el centro de formación, desarrollo de empleo y vivero de empresas ofrecerá servicios de creación y consolidación de empresas, internacionalización, gestión de calidad, asesoría jurídico-fiscal, nuevas tecnologías, información y tramitación de ayudas y subvenciones y cualquier otra demanda de interés de los ‘viveristas’.
Los responsables municipales han destacado que el vivero dispondrá de un aula de formación homologada que posibilitará impartir cursos con certificado de profesionalidad para mejorar la formación de las personas desempleadas y favorecer su acceso al empleo.
El Ayuntamiento de Haro trabaja con los técnicos de la Agencia de Desarrollo Económico de La Rioja, ADER, en la redacción de las bases que regularán la instalación de aquellos empresarios que quieran comenzar a desarrollar su actividad en estas instalaciones.
Estancia gratuita durante el primer año
El vivero priorizará las iniciativas empresariales relacionadas con el sector vinícola y permitirá a cinco emprendedores contar con oficina propia durante dos años, ha indicado la alcaldesa. Durante el primer año, la estancia será gratuita, mientras que en el segundo ejercicio deberán abonar una cuota mensual mínima.
La creación de este espacio viene precedida por la firma el año pasado de un convenio con la ADER que ha convertido a Haro en la primera cabecera de comarca ‘EmprendeRioja’.
La alcaldesa ha subrayado el apoyo del Ayuntamiento a los emprendedores a los que se ‘facilitará el acceso a unas instalaciones en las que podrán trabajar, formarse, interrelacionarse y colaborar’. De esta forma, ha dicho, ‘se pretende ayudar a aquellos particulares y empresas que empiezan y necesitan un local para poner en marcha su negocio’.
Rivado ha hecho hincapié en ‘el espíritu emprendedor de los jarreros que se refleja en los 31 proyectos participantes en la primera edición de los premios Emprende Haro’. El Ayuntamiento destinaba a este certamen, fallado en diciembre, un total de 23.000 euros a premiar 15 iniciativas empresariales que contribuyen al desarrollo económico del municipio.
Galería de imágenes










